Konu: Merdiven Asansörü Fiyatları Koltuklu Merdiven Asansörü Fiyatı Fiyatlar bazı şartlara ve opsiyonlara bağlı olarak değişiklik gösterebilir; belirtilen fiyatlar bilgi amaçlıdır. Doğru fiyatlar için lütfen bizi arayınız! +90 549 608 00 70 – 0212 608 00 70 Ürün Resmi Açıklama Fiyat Mertebesi (euro) 1 kat 5 m Ray, Düz merdivenler için (Yüksek giriş gibi) Sadece […]
Kategori: Merdiven Asansörü Blogu
Dünyanın ilk 4 Motorlu Koltuklu Merdiven Asansörü
Dünyanın ilk 4 Motorlu Koltuklu Merdiven Asansörü LiftArt Asansör Sistemleri, 2009 yılından beri en büyük merdiven asansörü üreticilerinden Hollandalı Handicare firmasının Türkiye tek temsilcisidir. Handicare firması müşteri odaklı çalışır ve müşterilerin isteklerine çok önem verir. Müşterilerden gelen “dişlisiz çalışan dolayısı ile yağ gerektirmeyen ama sağlam ve güvenli merdiven asansörü” isteklerine cevap vererek 2018 tarihinde […]
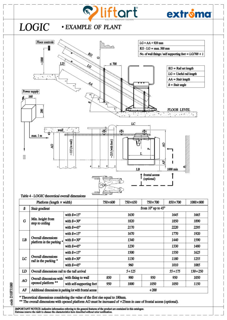
Engelli Asansörü Ölçüleri
Engelli Asansörü Ölçüleri Engelli asansörüne ihtiyacı olup yaptırmak isteyenler için engelli asansörü ölçüleri çok önemlidir. Yaptırmayı düşündükleri yerin ölçülerine uygun bir asansör modeli bulmaları gerekmekte ve bu ölçülerin de ihtiyaçlarını karşılayabilmesi gerekmektedir. Gördüğünüz gibi iki ayrı ölçüden bahsediyoruz. Birincisi asansörün yapılacağı yerin ölçüleri, en boyu yüksekliği net olarak belirlenmelidir. Duvarlarda eğrilik olabileceği düşünülerek mümkün […]
Merdiven Asansörü Fiyatı
Merdiven Asansörü Fiyatı Fiyatlar bazı şartlara ve opsiyonlara bağlı olarak değişiklik gösterebilir; belirtilen fiyatlar bilgi amaçlıdır. Doğru fiyatlar için lütfen bizi arayınız! +90 549 608 00 70 – 0212 608 00 70 1 kat Düz merdivenler için (Yüksek giriş gibi) ortalama 1.800 – 2.800 euro civarındadır. (iç mekan için) 1 kat “L” veya “U” […]
Alternatif Koltuklu Merdiven Asansörü Fiyatı
Merdiven asansörleri, merdiven kullanmakta zorlanan ve/veya klasik tip insan asansörü yapılamayan yerler için tasarlanmış asansör sistemleridir. Çoğu insanın müstakil evinde veya apartmanında ya da apartman dubleksinde katlar arası erişimi sağlamak için bir asansör ihtiyacı vardır. Tabii ki insanın aklına önce klasik tip asansör veya dikey çalışan ev asansörü, panoramik asansör gibi asansör sistemleri gelir ki […]
Ev Asansörü için Yerim Yok
Konu: Ev Asansörü için Yerim Yok Birkaç katlı müstakil ve sahipleri veya apartmanda oturan ama dikey çalışan bir asansör yaptırmak zorunda kalanlar bazen bu asansör modeli için binalarında yer bulamazlar. Bazen de bulabildikleri yer ev kullanımı için uygun değildir ya da buldukları yer ev asansörü yapılabilmesi için uygun ölçülerde değildir. İnsanlar diğer katlara daha kolay, […]
Multi Lift Engelli Merdiven Asansörü
Konu: Multi Lift Engelli Merdiven Asansörü Engelli asansörlerinin bir çok model ve tipi bulunmaktadır. Merdiven tipi, dikey açık tip, dikey kapalı tip, havuz tipi, deniz iskele tipi, tekne tipi, araç tipi vs gibi. Bunlara örnek vermek gerekirse merdiven tipi için engelli merdiven asansörü, dikey açık tip için engelli platform asansörü, dikey kapalı tip için engelli […]
Yeni Nesil Engelli Asansörü Nihayet Türkiye’de
Konu: Yeni Nesil Engelli Asansörü Nihayet Türkiye’de Bilindiği gibi Türkiye’ye bir çok marka engelli asansörü getirtiliyor. Bunların çoğu kalitesiz, ucuz fiyatlı ürünler. Neden kalitesiz ürün tercih ediliyor diye sorarsanız, ucuz olabilmesi için kalitesiz üretilmesi gerekmekte değil mi? O yüzden ucuz ürünlerin kalitesi de ucuz oluyor. Sonuç olarak Türkiye’de genellikle müteahitler iskan alabilmek için ucuz ürünler […]
Engelli Asansörü Medya Şirketinde
Konu: Engelli Asansörü Medya Şirketinde, Grup M medya da Montajımız Tamamlandı. İtalyan üretici Extrema firmasının tasarlayıp ürettiği yeni nesil bilgisayar kontrollü ve dijital ekranlı engelli asansörü modeli Next nihayet Türkiye’de. Engelli Asansörü Medya Şirketinde, Gayrettepe’deki bir alışveriş merkezi içinde bulunana medya şirketine engelli asansörü montajı yapıldı. Grup M Medya yönetimi, engelli personellerine katlar arası ulaşımı […]
Merdiven asansörleri çalınabilir mi
Konu: Merdiven asansörleri çalınabilir mi? Müşterilerimiz tarafından bize sık sorulan sorulardan birisi de merdiven asansörü satın alırsam çalınabilir mi? Aslında bu soruyu birçok müşteriden duyuyoruz; tabii ki biz burada size sadece temsilcisi olduğumuz Handicare merdiven asansörleri hakkında bilgi verebiliriz, başka markalar hakkında güvenilirlikleri hakkında size bilgi veremeyiz. Handicare merdiven asansörleri eğitimli ve yetkili teknik servis […]
